L'ACTUALITÉ de l'Agence

 

20 RUE VOLTAIRE



93 100


MONTREUI sous BOIS


Tél. : 01 48 70 47 98
port. : 06 80 26 37 29


Fax : 01 48 70 47 99

 




E-mail :
atelier.brunel@wanadoo.fr

..


____PROJETS EN COURS_____


EN ETUDE :

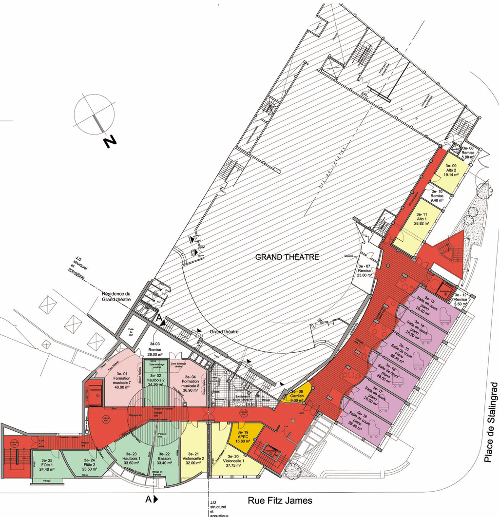
- - Conservatoire National de Limoges - (87 Limoges) - plan - image 3 - NEWS!
- - Logements sociaux et ateliers d'artistes (SIEMP) - (Paris 18 ème)

- - Aménagement de la CPAM de Nanterre - (Ile de France)
- - Hôpital de Douarnenez, 170 Lits de long séjour - (29 Finistère)
- - Hopital à Chartres, 124 Lits long et moyen séjour - (Lauréat du concours 2002)
- - OPAC de Fontainebleau - 5+18 Logements bio-climatiques
- - EHPAD de 83 logements à Nantes - Lauréat du concours (44 Loire Atlantique)
- - Hopital de Nemours, restructuration du centre de gériatrie (Lauréat 2003)
- - Rénovation de la caserne des pompiers - 93 Villemomble

 

EN CONSTRUCTION :

- - Ecole de musique de Guyancourt (78 Yvelines)
- - Hôpital de Lallaing, 167 Lits long séjour- (59 Département du nord)

- - Hôpital d'Eaubonne, 20 Lits de gériatrie, 20 lits de psychiatrie - (INR)
- - Hôpital de Bois Guillaume, surélévation pour 12 lits d'accueil au cérébro-lésés (76 Rouen)
- - Lycée La Bruyère (IDF/Saerp) - Photos du chantier
- - OPAC de Paris - Amélioration de l'habitat en milieu occupé, (Paris 11ème)

- - Hôpital de St-Maurice, 15 819 m2 - (Institut National de Rééducation - 94)

 









 

___CONCOURS / AUTRES PROJETS ____

• "Ecole de Bretigny-sur-Orge - (2005)
• "
RIVP/Crous, 94 Logements pour étudiants à Paris 19è - (2005)

• "Restauration Maison Poulain à Blois, aménagement de l'IUT (2005)
• "Crêche de 60 berceaux H.Vallon à Montreuil - (2005)

• "Hôpital Lariboisière "(2003)
• "Hopital de St-Maixent" (2003)

• "Médiathèque à Quimperlé" (concours 2002)
• "Hopital de Louhans" (2002)
• "Centre Hospitalier de Tullins" (concours 2001)
• "Cuisines collectives de la Seyne-sur-Mer" (2000)
• "Cuisine de l'hôpital de Lisieux" (2000)
• "Cantine scolaire à Marolles en Hurepoix " (2000)
• "Saint Nazaire" (concours pour le quartier de Ville-Port)
• "Centre gériatrique Départemental de Karlsruhe" (1999)
• "Restaurant Communautaire à Strasbourg" (1999)

• "Cuisine de Montataire" (1999)

 


____PUBLICATIONS__________



• L'Echo (octobre2004)
"Extension du conservatoire de Limoges"

• Wood Surfer (juillet 2004):
"Apologie de la mixité
>>page 2
>>
page 3
Le Moniteur (31/01/2003) : "Logement social et qualité environnementale"
Le Moniteur (31/01/2003): "Bois Guillaume"
Le Moniteur (1/11/2002): "L'acoustique prioritaire au conservatoire"
Le Moniteur (19/04/2002): "Un conservatoire de musique à Malakoff"
L'Empreinte : n°57 >> page2 : "Qualité environnementale et vocation sociale"
• Côté Brique : " Théâtre de Noisy-Le-Sec"
• Côté Brique : "Conservatoire de Malakoff"
• Techniques & Architecture (1996): "Lieux de la vieillesse et du handicap"
• Techniques & Architecture (1996): "La Bouexière " >>page2



PUBLICATIONS ETRANGERES :

"Mecanos de madera >> page 2 -(Argentine)
"Maison de retraite Kergomar (Chine)"
"Cuisine Centrale de l'hôpital Avicenne (Japon)"
"Atelier 75013 - Der Neue Holzbau (Allemagne)" >>page2
"Dos Viviendas en Paris - A + T (Espagne)"
"Ateliers d'artistes à Paris (Chine)"
"Ateliergebäude in Paris
(Allemagne)
"Arquitectura en madera- (Italie)